Vivez une expérience immo’ lumineuse en réservant une visite avec Emeline au 0471/49.68.98
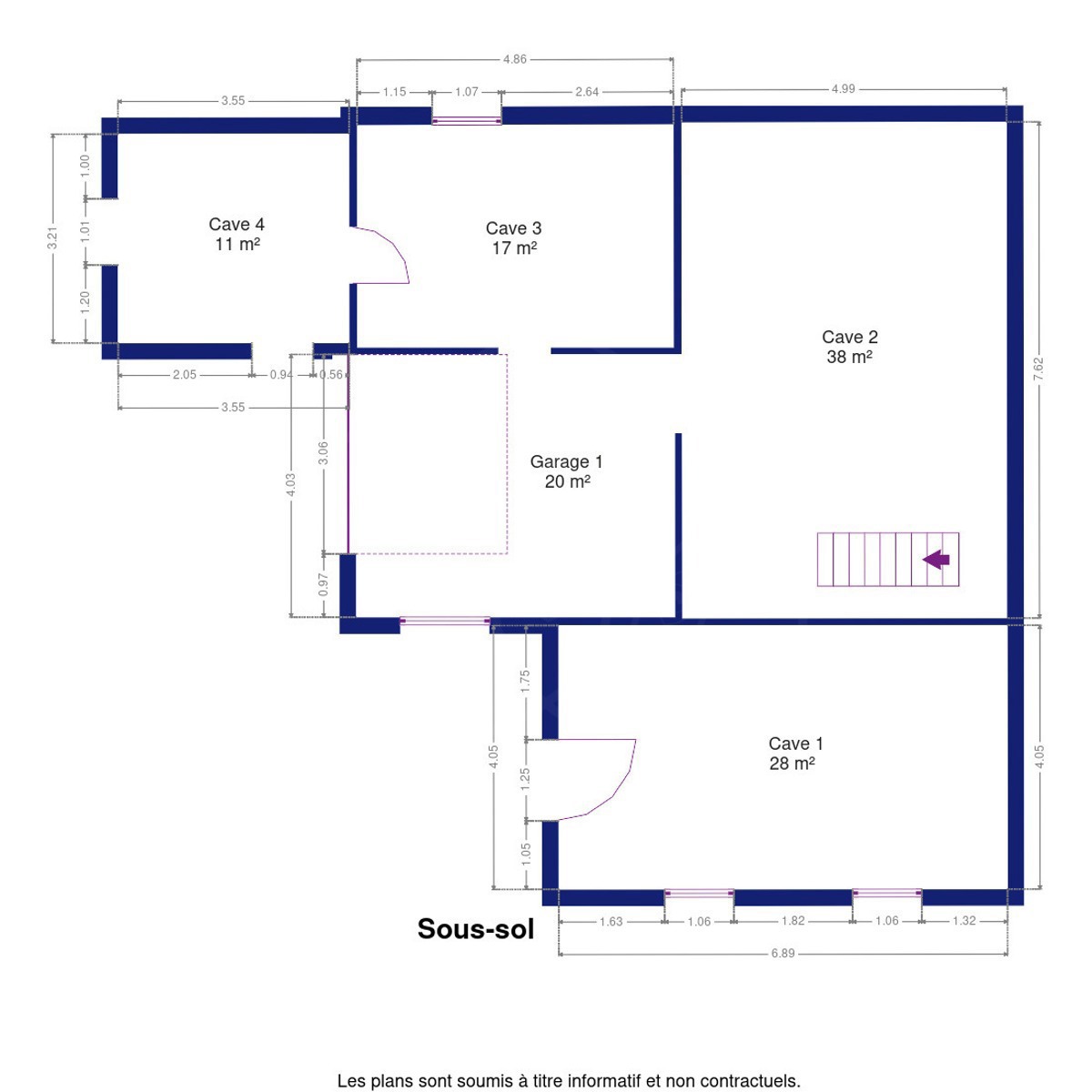
Nichée en pleine campagne, au lieu-dit de la Charlerie, cet ancienne grange pouvant s’apparenter à un gros oeuvre fermé (châssis DV PVC présents) méritera d’être réhabilitée pour en faire un petit cocon à la vue imprenable* Ayant déjà bénéficié d’un avis non défavorable de la part de l’administration communale à cet égard en 2003 et sous toutes réserves d’obtention de permis, il sera possible d’y établir une habitation classique avec caves. Sise sur un terrain de +-30ares à la merveilleuse situation campagnarde, ce bien pourra comporter jusqu’à 3 chambres* Sa base, tout béton et composée d’anciennes maçonnerie en pierres, briques et blocs offrira après un peu de travail et réflexion, de multiples possibilités. Accompagnée d’un garage attenant et de grandes caves, elle permettra à tout intéressé par de larges volumes ou un grand terrain d’y prendre ses quartiers. Sa situation privilégiée plaira aux amoureux de calme, de verdure et d’espaces aérés. Véritable opportunité compte tenu de sa situation et la surface de son terrain, ce bien se situe à 2 minutes du coeur de Bois-de-Villers et toutes ses facilités. Avec son large passage latéral*, il offrira, moyennant quelques aménagements, une zone de circulation aisée. Tous raccordements à prévoir par l’acquéreur (eau, éléctricité, MSE…) ainsi que participation aux frais de divison (+-350€ htva). En quête d’un lieu avec vue à projet dans un cadre paisible ? Ce bien vous attend ! * Contenance approximative – Sous réserve de division en cours et de permis – Possibilité d’acquérir un ancien hangar et +-30ares de terrain complémentaires – infos sur demande et sur www.emla-immo.be

























