Vivez une expérience immo’ lumineuse en réservant une visite en ligne !
✨Réveillez la beauté cachée de ce lieu et laissez vos rêves s’y installer✨
Préservée des regards indiscrets au fond d’une impasse, cette maisonnette figée dans le passé n’attend plus qu’un souffle de créativité et quelques gestes attentionnés pour raviver sa splendeur.
Enlacée par son agréable jardin agrémenté, notre belle endormie vous invite dès le seuil de la porte d’entrée à vous immerger dans un univers pratique et fonctionnel, agrémenté d’une touche unique.
Guidé par le hall d’entrée vers le séjour cosy et confortable (+-27m²), il vous sera possible de faire de cette pièce le véritable coeur de la maison. Jouxtant la cuisine, c’est l’endroit parfait pour profiter de la vue sur le jardin bucolique et sa pièce d’eau en toute saison.
Sur le premier (demi) niveau, découvrez l’espace nuit intelligemment disposé avec 2 chambres (8 et 11m²) pouvant aisément se transformer en une vaste suite, avec son dressing attenant et sa salle de douche. Cet étage, formant un cocon intime et harmonieux est complété par un wc séparé.
Sur le dernier niveau, retrouvez une grande chambre avec de beaux volumes et juxtaposé à celle-ci une pièce pouvant très facilement être utilisée comme bureau ou pour vos loisirs créatifs…
Dans cette maison, il faut savoir s’imprégner, laisser ses sens s’éveiller pour imaginer une nouvelle disposition, celle qui donnera vie à vos projets et révélera tout le potentiel de ce lieu.
La maison dispose de 2 greniers où le stockage de vos archives ou souvenirs se fera en toute facilité.
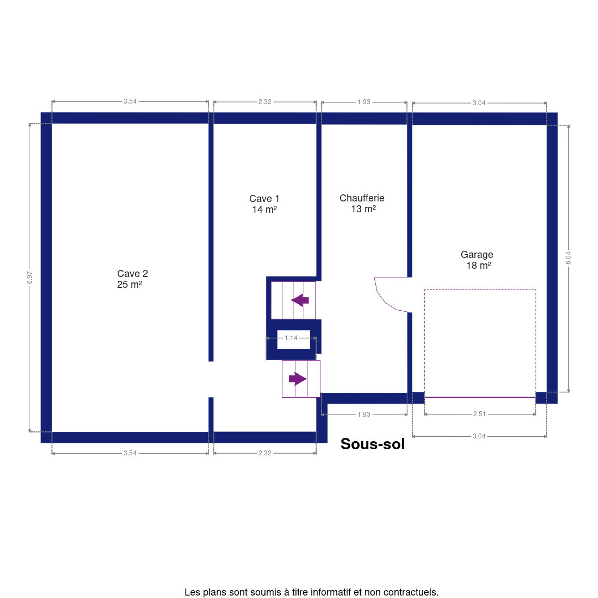
Au sous-sol, de vastes caves offrent elles aussi de généreux espaces de rangement et un coin buanderie (entre le garage et le hall d’entrée) y est déjà présent.
Pour parfaire ce confort, la maison bénéficie d’un système d’alarme et d’un garage doté d’un volet motorisé, véritables atout pour accueillir votre véhicule en toute sérénité.
Sa plume de paon ? 🦚
Vous l’aurez compris, elle dévoile un magnifique potentiel avec d’agréables volumes tout en minimalisme qui ne demandent qu’à prendre vie au rythme de vos envies.
Mais nous avons eu le coup de foudre pour son jardin offrant un bel aménagement, tout en simplicité, véritable refuge quotidien en plein air.
Côté techniques ? ⚒️
Le corps chauffant (chaudière mazout de 1992) de cette maison tourne comme une horloge, tel un mécanisme précieux entretenu avec soin.
Les châssis sont en double vitrage en PVC et datent de 2009-2010 et sont en superbe état (volets partout)
La toiture est d’origine (présence d’amiante suspectée), mais totalement étanche et en ordre d’entretien (démoussage …), puisqu’effectué en 2025.
Elle est reliée aux égouts.
Elle comprend une citerne à mazout de 3.000L – tous frais de remise en conformité éventuelle à charge de l’acquéreur.
Elle est libre à l’acte.
Comptez un budget rafraîchissement global (salle de bain, sols, papier peint et murs…), tant pour l’isolation que pour l’électricité, qui sera à revoir presque entièrement.
Prêt à la découvrir en vrai ? On vous attend pour une visite !













































